ΚΑΤΑΛΛΗΛΟ ΓΙΑ ΠΑΡΑΘΥΡΑ ΚΑΙ ΠΟΡΤΕΣ

ΤΟΙΧΟΙ: EI 30 ΚΑΙ EI 60 ΠΟΡΤΕΣ: EI 30

Οι κατασκευές που έχουν σχεδιαστεί με βάση το σύστημα FR90 διαθέτουν κλάσεις πυροπροστασίας τύπου EI 30, EI 60, EI 90, EI 120 για τοίχους ενώ EI 30, EI 60, EI 90 για πόρτες.

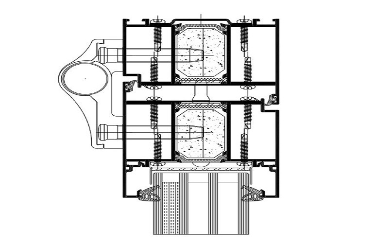
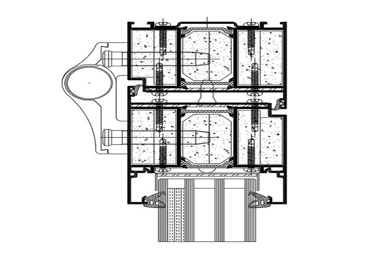
Περιγραφή συστήματος:

Βάθος εγκατάστασης: 90 mm

Συμμετρικά σχεδιασμένο προφίλ, εσωτερικός θάλαμος γεμάτος με στοιχεία πλήρωσης γύψου (μεταξύ φύλλων θερμικού διαχωρισμού)

EI 30: όλοι οι θάλαμοι είναι γεμάτοι με γύψο στο εσωτερικό τους.

EI 60: συμβατικά με συστήματα που έχουν βάθος τοποθέτησης 90 mm (STAR) με δυνατότητα εφαρμογής τριπλής υάλωσης (υάλωση: 20 mm μέχρι 68 mm)

Επιλογή πλήρωσης πλαισίου (πάχος πίνακα 60 mm):

  • πάνελ αρχειοθέτησης ορυκτού μαλλιού (Πάνω = 0,57 W / m2K)

  • πάνελ γεμάτα γύψο

Εφαρμογή: εσωτερικές και εξωτερικές εγκαταστάσεις

Κατασκευές: μονές και διπλές πόρτες, σταθερά τζάμια

Μέγιστες διαστάσεις δοκιμασμένης δομής: 6000 x 3000 mm (σταθερό τοίχωμα, μονό τζάμι)

Μέγιστες διαστάσεις μονόφυλλων θυρών: 1650 x 2870 mm

Μέγιστες διαστάσεις θυρών διπλού φύλλου: 3170 x 2870 mm.

Κλειδαριές πόρτας μονής και πολλαπλών σημείων, ηλεκτρικές πόρτες

Λύσεις με και χωρίς κατώφλια

Πλάκες λακτίσματος πόρτας (μπλοκ υψηλού πλίνθου)

Επιλογή εγκατάστασης εξαερισμού

Βελτιστοποιημένα προφίλ (ένας τύπος προφίλ για το πλαίσιο και το φύλλο της πόρτας)

Γρήγορη και απλή προκατασκευή (χωρίς επεξεργασία της ράβδου υαλοπίνακα)

Ακουστική – δοκιμή διπλών θυρών με κλάσεις πυροπροστασίας τύπου EI 30 και EI 60 για εσωτερικές και εξωτερικές εγκαταστάσεις: 39 έως 47 dB

Διατίθεται σε μεγάλη γκάμα χρωμάτων παλέτας RAL.